Villaggio               sul Mare
SITE STUDIES HIGHLIGHTS (Note: Details and Studies available in Dropbox) Unrestricted Views Minutes from Beach BoutiqueVillage in a Resort Hillside Setting Easy access to I-5 and Carlsbad Train Station Nearby World Class Resorts, Entertainment and Spas Infill Site with acess and utilities stubed to the property Villaggio has been graded, farmed, and cleared under permits and environmental reviews for decades Extensive Geological testing was performed, and is available Coastal Permit Authority was transfered to the City under the Local Coastal Plan Although processed for decades with adjacent property, Villaggio is not a part of adjacent HOA.
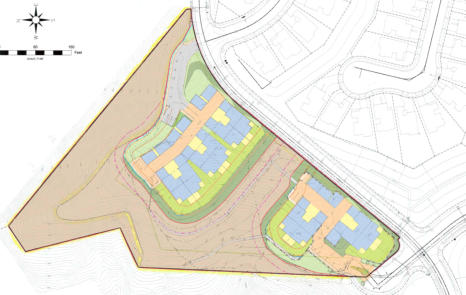
· · · · · · · · · · 6 - 4 Plexs  (Uses full site with 100’ Fire Zone)
Villaggio           sul Mare
SITE STUDIES HIGHLIGHTS (Note: Details and Studies available in Dropbox) Unrestricted Views Minutes from Beach BoutiqueVillage in a Resort Hillside Setting Easy access to I-5 and Carlsbad Train Station Nearby World Class Resorts, Entertainment and Spas Infill Site with acess and utilities stubed to the property Villaggio has been graded, farmed, and cleared under permits and environmental reviews for decades Extensive Geological testing was performed, and is available Coastal Permit Authority was transfered to the City under the Local Coastal Plan Although processed for decades with adjacent property, Villaggio is not a part of adjacent HOA.
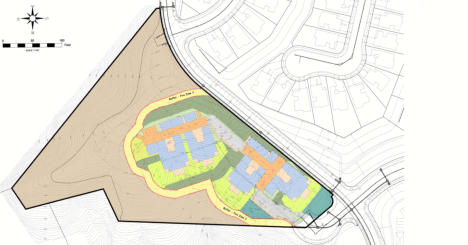
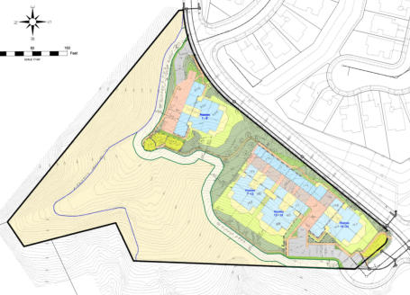
· · · · · · · · · · 6 - 4 Plexs  (Uses full site with 100’ Fire Zone)